青梅市野上町クーア整骨院 店舗デザイン・テナント工事現場




ご利用されるお客様の体の不調を改善することは医院にとって当たり前のことです。
「ただ施術を行うだけではなく心地よい空間でお客様に少しでもリラックスしていただき、より快適に施術を受けて頂けるだような医院にしたい。」
院長の思いを形にしました。
『少し高級・・・。そして暖かい』
―玄関を入ってすぐ小さなカウンターその後ろはカーテンで仕切られた施術室―
こういう接骨院・整骨院が大半を占めます。
「腕だけで勝負!」これもいいでしょう。
ただ、『少しでも良いイメージの医院に係りたい』これは普通の感情ではないでしょうか?
少し高級で、そして暖かい雰囲気の『カフェのような整骨院』があってもいいのでは・・・。
そんな思いをデザインしてみました。

『来る人を拒まないR』
R(曲線)には不思議な力があります。人に「柔らかい」「やさしい」「暖かい」などの感情を与えます。
空間として傷みに耐える患者様に少しでも和らぎを与えることができたら、デザイナーとしてどれほど幸せな事か・・・。その思いが角のないRへとデザインを導きました。










『ランドマークとなる為の丸窓』
待ち合わせ場所や、案内のときに「四つの丸窓のお店の横」とか地域の人に認知されやすいデザインしました。
夜には内部からの照明の効果で「光る丸い物体」が4個浮かび上がります。
この丸窓はお店自体が看板になることを目的にデザインしています。
円はRと同じ作用があると考えます。
視覚的に和らぎを与えることができると思います。
受付のカウンターの角も安全性も考慮しR加工。
合わせて通気換気用の開口部も円形にしました。









『まっすぐ伸びる力を加える』
白い紙の上に白い絵の具1滴を落とします。
ほとんどその絵の具の存在に気が付かないでしょう。
こんどはその白い紙の上に赤い絵の具1滴を落とすとどうでしょう?
余程のことがなければ「赤」という存在にすぐに気が付く事だと思います。
さらには紙が白かったことにも気が付くかも知れません。
ただ、円やRを多用しただけでは暖かさや和らぎを表現しきれないと思います。円やRを際立たせるために、対比させるための「直線の力」がこの空間には必要でした。
その為、待合室の目隠しルーバーとして、整材した材木を使用しました。
ここは玄関との境にもなっているので、患者様が手を掛けることを想定しました。その為、木の温もり質感を少しでも味わっていただけるよう、無塗装で使用しています。
月日が経てば汚れ、変色していくことでしょう。
それが数年後には「味」となるはずです。







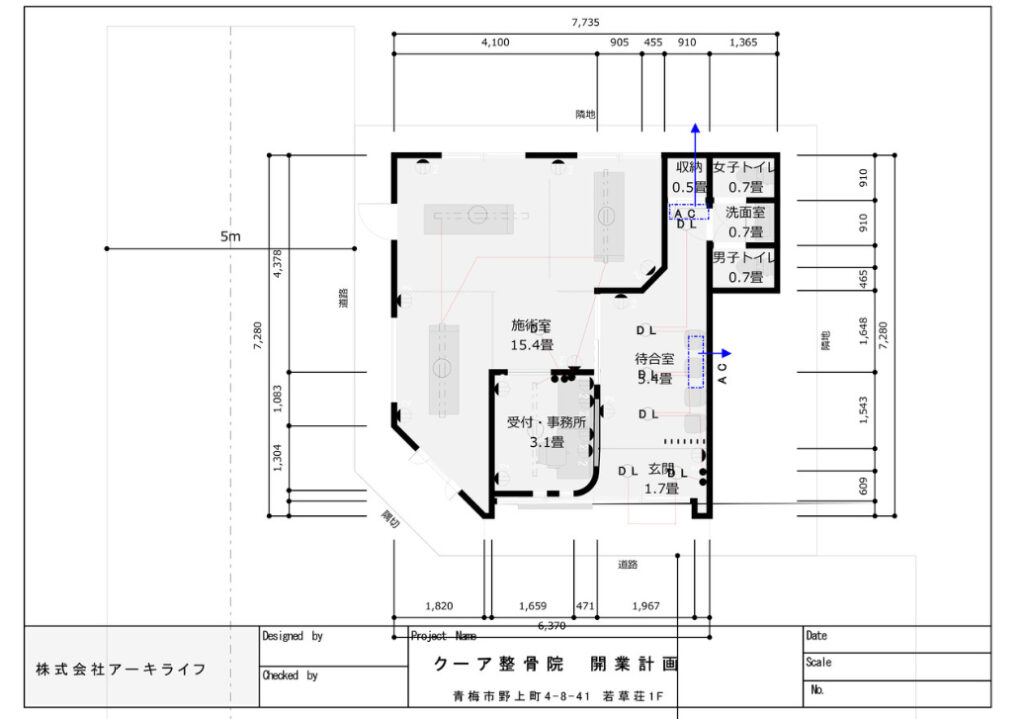
『広々玄関・待合室』
もちろん患者様をお待たせするつもりはないですが、時には少しお時間を頂く事もあります。
その時はすこしでもくつろいでいただけるようにと・・・。
玄関と待合室は広くスペースを取り開放感ある空間づくりを心掛けました。




『広くなくてもゆとりのある施術室』
必要な寸法を必要なだけ使い広くはなくともゆとりのある施術室を設置しました。
カーテン越しに隣の患者様の息遣いを感じるような感覚ではなく、自分のスペースとして確立するための施術スペースをデザインしております。
照明も暖色系のLEDダウンライトを用いることにより暖かなイメージを演出しております。










『失敗の産物』
デザインや設計に気を付けていても失敗することがあります。
後付やデザインの変化があったときは特にそうなりがちです。
こちらの物件も最初のデザインから少しづつ育てていきました。
結果として下駄箱の存在を軽んじてしまいました。
現場が進むにつれ下駄箱の存在に気が付き、下駄箱を使用される方が非常に使い難いことに気が付きます。
急遽現場でお施主様、職人さんと打ち合わせ。
どうすれば自然で且つ感動を与えられるような物が創れるか?
今回、下駄箱に続く通路を渡り廊下と見立てるデザインに行きつきました。
フローリングの張方向も斜めにすることで、初めてご来店頂く患者様にも、その存在に気づいて頂きやすくデザインしております。
失敗から生まれたデザインではありますが、この物件の中で私の最も気に入っている箇所であります。






『カッティングシート施工』
大学卒業後、『造形屋』にデザイナーとして就職した私。
因みに『造形屋』とはマネキンやメリーゴーランドなどFRPを使用した造形物を創る仕事です。
その会社で稀にサインに『カッティングシート』を施工する仕事をしておりました。
今回久しぶりにカッティングシートを貼るお仕事をさせて頂きました。
水平・垂直を出して位置出しして貼る。なかなか手こずりました。
でも、この作業が終わるとグッと感じが出てきました。









『お祝いに・・・。』
開店のお祝いに弊社より時計を送らせて頂きました。
ジョージ・ネルソンのボールクロックの生地色。
ココにもまた「R」
傷みを抱える患者様の気持ちが少しでも和むようにとの願いを込めて・・・。









コメント