立川市柏町1-29-25










名称:ヒノキ整骨院
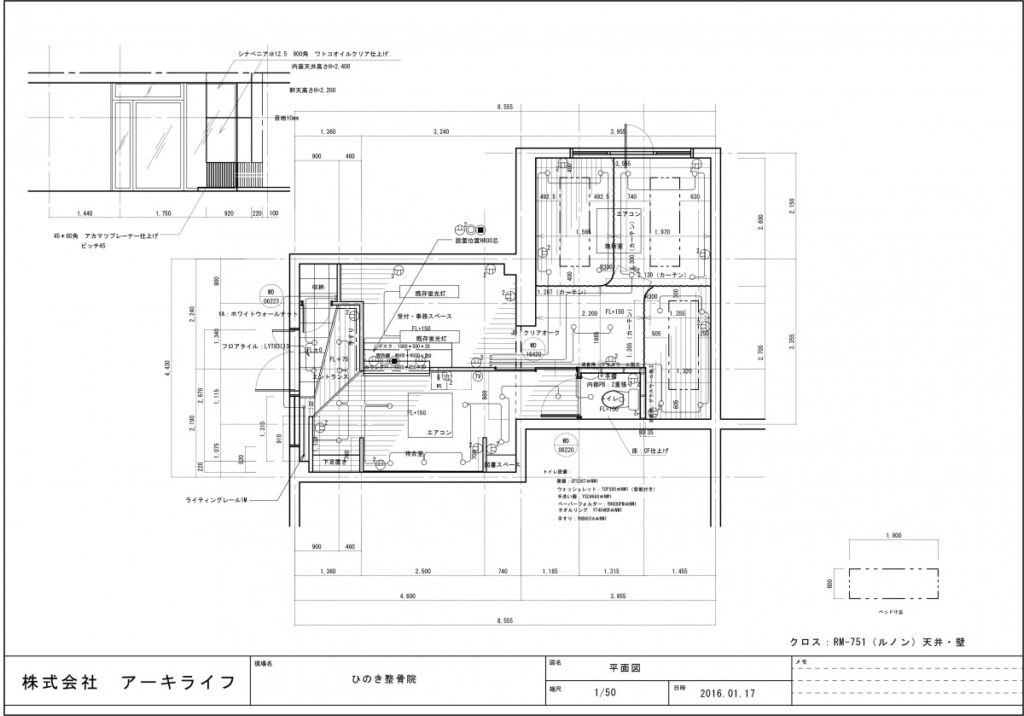
所在:立川市柏町
規模:約14坪
空間デザイン:岡田 敦

今回のテナントも決して大きくゆとりのあるものではありませんでした。
間取りも少し不整形な空間でした。
そのため既存のトイレの位置を移動するという大工事を行いました。
トイレの排水管を配置するために置床構造とし、床の高さを約15センチ上げることにしました。
15センチといえば通常の階段と比較すると高くもない段差です。しかし、ご年配の患者様のことを考えると少しでも段差を低くするように考えました。
15センチの高さを単純に2段とすることで7.5センチの段差を作ります。直線的に上がるのではなく、周り階段のような形状、幅、奥行きを深くすることでゆとりをもった『高級感』を演出するようにデザインしています。
玄関框がリズミカルに目線を誘導します。
患者様を最初に迎える手すりは『旭ウッドテック』社の商品です。
普通の丸棒と比較にならないくらいの存在感、高級感です。




玄関を上がり切った先には下駄箱。
シンプルで主張しないデザインの造作棚を制作しました。
その先に約3~4人収容できる待合スペース。
背面の木サイディングは空間に視覚的に暖かさを与えほか、待合に設置される椅子の背もたれが接触することによる壁の損傷を軽減します。
アクセントとして3台のダウンライトを用いウォールウォッシャー効果で演出しています。





トイレは、女性に親しみやすいデザインとしました。
全体的にはホワイトで纏め、床はテラコッタ調と致しました。
埋め込み型の手洗い器を設置しております。
壁の向こう側が施術室となっており音の問題が予想されます。壁の中には吸音材、内装の石膏ボードを2重張りにすることで防音仕様としています。
施術室は、3床のベッドが設置できるように設計しました。
あえて施術スペースに大小をつけることにより、使用用途を分けることができます。
最も小さなスペースは電気治療室。患者様だけがくつろげる最低の広さを確保しています。
他の2室は施術の動きの違いで使い分けができます。
カーテンで間仕切っている為、時と場合によっては開け放つと大空間へと変化します。







事務スペースは最低限の仕様にしています。
カウンター上部には今後増えるであろう物品が収納できるように、ミニキッチン用の吊戸棚を2台設置しました。
コメント