

新選組副長、土方歳三の故郷である東京都日野市。
現在では、人気の立川市の隣市として人気の高いエリアになっております。
その日野市に当社で土地を買いデザイン建売を建築させて頂きました。
『建売は面白くない』という固定概念を壊すことを目的に、私にしかできないデザインをすることをコンセプトとしました。
外観はキュービックなフォルムを強調するように、水平垂直だけでなく斜めのラインを意識してスタイリングしております。








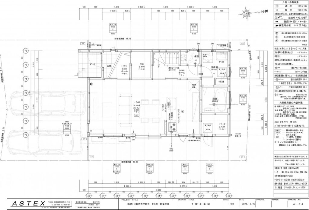
LDK:内部はいつもシンプルに素材感に拘りコーディネートしています。
床はオークのフローリングを選定しています。
南面の縦スリット窓は採光には十分な大きさです。南道路の物件には採光の為、大きな引違いの掃き出し窓を使用する建築会社がありますが、道路から内部が見えすぎ窓を開けることができないケースが多いです。
その為、採光に必要な大きさを確保し、なるべく目線を避けられるようにデザインしています。
キッチンからも少し外が見えることで、家事の合間に外を感じることができると考えます。
天井一杯まで窓を高くすることで、外とのつながりがより強調できるよう工夫をしています。





キッチンの背面にはパントリーを設けています。
更に、外部のデッキに出れるように勝手口を設けています。
キッチン背面はタイル調のクロスを使用しています。



水回り:洗面室は現在、当社では人気となっている造作洗面台&上部収納を標準仕様で設置しています。
ユニットバスはLIXILアライズを使用しています。全て白で統一して清潔感のある空間を作っております。
トイレはこの建物の中で唯一アクセントを使用しています。






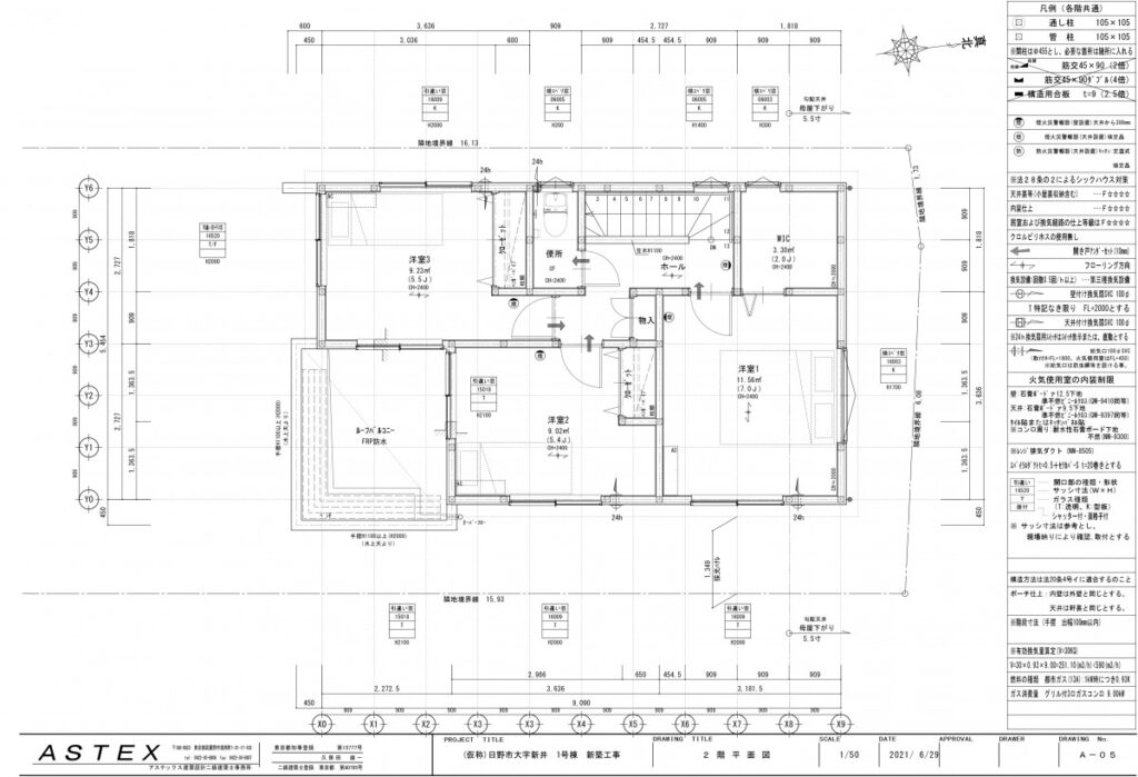
2階洋室:しっかりと採光が取りながら、少し遊び心を入れて窓選びをしています。
南側の2部屋はバルコニーを介しつながりを持たせています。しかし一つの部屋として独立性を保つため南北にずらし設計しています。






廊下等:私の中では廊下などの機能部のデザインも大切だと思っています。一般的には居室(長時間滞在する部屋)ではないことから粗末に扱われがちです。
しかし、この機能部が無いと生活に支障をきたします。私は機能的であることと心地よくあることの両立が大切な空間だと認識しています。
少し通路が広いと何ができるか?などを考えることがとても楽しく思っています。デザインの余地はむしろこの空間にこそあると思っています。







最後はこの物件の目玉『バルコニー』です。
私はバルコニー=物干し場という考え方に疑問を持っています。
住宅の中でバルコニーは外部でありながらも、建物中に存在する特殊な空間だととらえています。
外部空間で自分だけの空間と言えるのは、バルコニーを除くと庭と駐車場ではないでしょうか?
その中でもバルコニーは通常2階部にある為、地面には設置していません。うまくデザインするとこれほど楽しい空間はないと思っております。
こちらの物件では面積も広くさらに作り付けのベンチも設置し、家族又は友人たちを楽しむことができすようデザインしています。
夜は、外灯を点ければ行灯の様に、外部に光がもれます。この建物は仕事や学校から帰ってくる家族の道しるべとなってくれる存在であってほしいと思っています。







最後はパース集
もちろん建築前に作ってます。








コメント