国立市谷保 ベルジュール国立谷保Ⅱ

本格的に趣味を楽しもうとすると振動や、騒音などで近隣にお住いの方々にご迷惑をお掛けすることがあります。
迷惑を掛けることをわかっていてもやっぱり諦められない場合、対策をすることであるご近所に掛ける迷惑をかなり軽減し、思いっきり楽しむことができれば素晴らしいと思います。
そんなことでこちらの物件はまず『防音対策』でした。
最初は音響メーカーさんの防音室を室内に創ってほしいとのご要望でした。もちろん弊社でも可能な工事です。
実際に某音響メーカーさんの防音室を新築時に施工させて頂いたこともあります。
確かに音響メーカーさんの防音室は防音性能は最高値です。全くと言って良いほど外に音が漏れることはありません。
但し、①高価な事、②部屋の内寸が極端に減ること③融通が利かないこと・・・。など色々と短所もあります。
そこで今回しっかりとヒアリングを行う為、ご自宅に伺いどの程度の音が出ているのかを体感させて頂くことから始めました。
確かに使用する機械のモーターの音や、吸引器の音、通常では聞かない音がしていました。
しかし今回の物件は、建物の構造も鉄筋コンクリート造(=以下RC造)である為、かなりの遮音性が期待できますし、メーカーの防音室を作る程の音ではないと思い、お客様に現場で大工工事で施工できる防音工事をお勧め致しました。

防音は吸音と遮音の2種類を組み合わせて行います。
まずは吸音。
多孔質な素材を用い音を吸収いたします。多孔質な素材とはスポンジやグラスウールなどの柔らかい素材をイメージしてください。
実際写真の状態のときは、部屋の中で話をすると耳の中に『膜』が張ってしまったかのような違和感を覚えました。吸音されていることの証明です。

つぎに遮音です。
こちらは吸音とは真逆で『重さ』『硬さ』を要求されます。『硬さ』といってもある程度でなければ逆に振動をして音を増幅してしまいます。
その為こちらの写真の『遮音ボード』には石膏ボードの裏に硬質ゴムの板が張られています。
吸音ボードの上にさらに目地をずらして石膏ボードを上張りして防音工事は完了いたします。





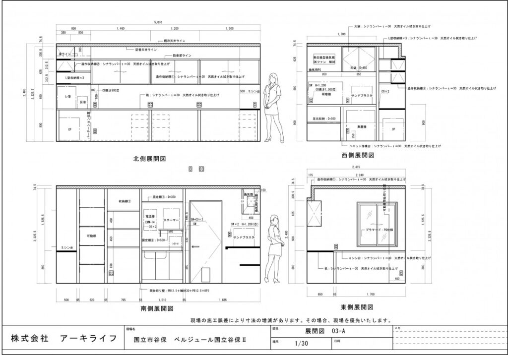
お施主様から、使用する道具や材料がたくさんある為できるだけ収納を多く作りたいとのご要望があり、すべての家具を造作で作らせていただきました。
お店で買って来たものでは寸法も合わず、無駄なスペースができるのを防ぐための配慮です。
ご予算の問題もありますので、できるだけ安価で見栄えのするものをデザインさせていただきました。
小さな隙間にもL型の棚を設け使えるようにしてあります。(使い勝手は良くないとおもいますが・・・。)





お客様の御要望を聞いた段階で今回はパースで表現するより図面の方がご理解、ご納得していただけるのではないかと図面で表現させていただきました。
家具の寸法、配置、取付高さを細かく検討し無駄のないようにデザイン設計しています。

出来上がった趣味室がこちら。
天井の空模様のクロスはお客様のチョイスです。長時間こもって作業されることもあるようで空を感じながら作業できれば多少の気分転換になるのでしょう。
リフォームを行うには色々な事情があります。
・経年劣化による設備の入れ替え
・家族の変化による間取りの変更
・バリアフリー工事
・気分を一新したい ・・・etc
いろいろなお客様とじっくりとお話させて頂き、何が必要で何が必要でないかをプロとしてアドバイスさえて頂けるように毎回こころがけております。









コメント